Многокомнатная квартира 158,60 м2 по ул. Сиреневая 35 за 13800000 руб.

Многокомнатная квартира по ул. Сиреневая, 35 в Новосибирске
Цена 13 800 000 р. (87 011 р./м2)
Подать заявку на ипотеку
Адрес Сиреневая, 35
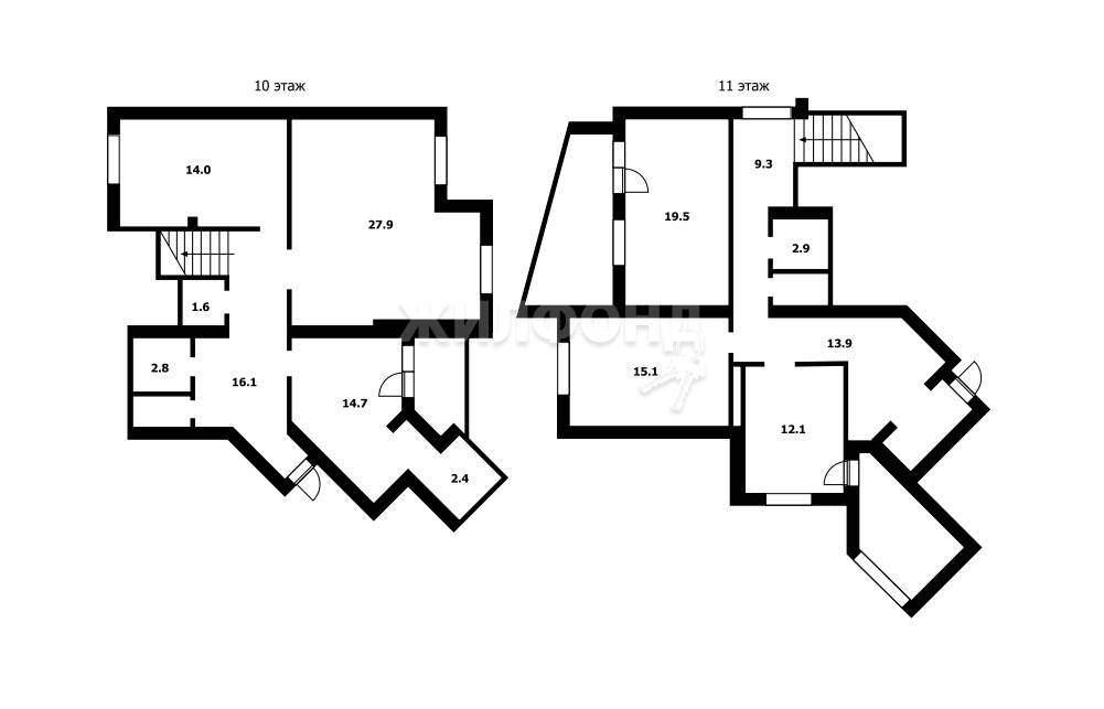
Этаж 10/11
Площадь общая 158,6 м2, жилая 88,6 м2, кухни 17,1 м2
Кол-во комнат Многокомнатная
Дом по ул. Сиреневая. Общей площадью: 158.60 кв.м. ! ! СНИЖЕНА ЦЕНА ! ! Предлагается к продаже эксклюзивная 2х-уровневая 5-ти комнатная квартира на 10-м и 11-м этажах в кирпичном доме классической кладки. Вход в дом осуществляется с помощью умного домофона, имеется лифт, помещение для самокатов и велосипедов, колясочная. Отличная планировка! На первом этаже квартиры уютно расположились: просторная прихожая, кухня с кладовой и лоджией, гостиная, кабинет, совмещённый сан. узел с ванной, шикарная просторная лестница на второй этаж. На втором этаже: две спальни с лоджиями, детская, гардеробная, раздельный сан. узел, просторный коридор с холлом. Общая площадь квартиры с учётом лоджий и лестничной клетки составляет 175 кв.м. Для удобства хозяев предусмотрен отдельный вход. выход со второго этажа квартиры на лестничную площадку 11-го этажа. Отделка квартиры выполнена в современном стиле, на полу плитка ПВХ, в санузлах и кухне кафель, двери и открытые дверные проёмы - из дерева, окна - качественные тройные пластиковые стеклопакеты, лестница изготовлена по индивидуальному заказу из массива бука. Во всей квартире натяжные потолки со встроенными светильниками. Все лоджии остеклены пластиковыми стеклопакетами. Рядом с домом имеется просторный наземный паркинг. За домом расположена лесопарковая зона, в шаговой доступности сооружение Новосибирского шлюза с живописными видами на Обское водохранилище и реку Обь. Отличная транспортная доступность и развитая инфраструктура: рядом две остановки общественного транспорта, магазины и крупные торговые центры, медицинский центр, аптеки, детские дошкольные учреждения и школы. До Верхней зоны Академгородка и в районы левобережья можно добраться за 10 минут. Приятным бонусом для покупателя будет эксклюзивный кухонный гарнитур со встроенной посудомоечной машиной и барной стойкой, мебель и водонагреватель в ванной комнате 1-го этажа, эксклюзивные люстры и светильники во всей квартире, портьеры и шторы, а также спальный гарнитур и мебель в кабинетах и детских. Ограничений и обременений НЕТ. Полный пакет документов. Квартира подходит под все формы расчёта. Реальному покупателю разумный торг. Показ - по предварительной договоренности. Смотрите фото, звоните! Покажем в удобное для Вас время! Рядом с объектом находятся: 3 школы, 2 детских сада, 9 продуктовых магазинов, 3 спортивных учреждения. Возможен обмен на вашу недвижимость. Возможна продажа в рассрочку. При звонке, пожалуйста, сообщите номер варианта - JV005054100453
Описание дома
Этажность дома 11
Объявление № 23298050
Дата подачи:
6 октября 2025 г. 3:19
Дата обновления:
6 октября 2025 г. 2:37
Просмотров 17 Хотите продать быстрее?

Продавец
Ирина Николаевна
Показать номер телефона
Пожаловаться
Комментарии:
Добавить